产品分类Product classification
产品中心

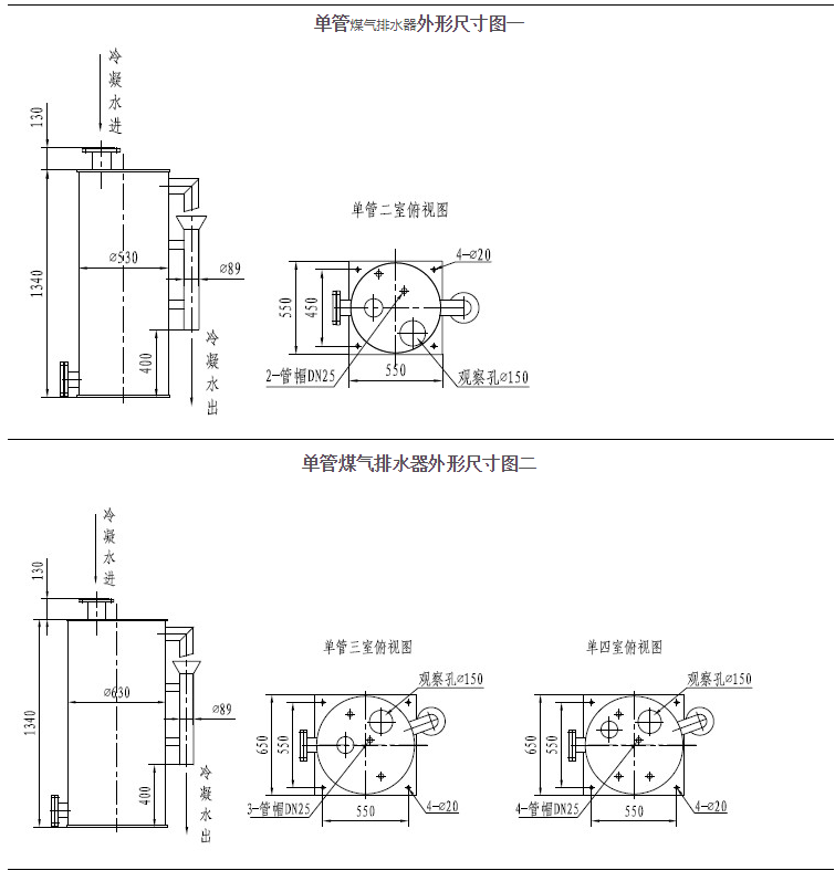
单管煤气排水器
1、产品用途
本煤气排水器分二室、三室、四室、五室、六室等多种结构,分别适用于计算压力低于15000、25000、35000Pa、45000Pa、55000Pa、65000Pa的各种煤气管道,及时排除管道中的冷凝水。
2、结构特点
2.1本排水器不设固定水管,采用在观察孔处定期检查给水的办法。第 一次开工灌水时,需打开顶盖上的1″管帽排除空气。
2.2插入敞开室的蒸汽管,视气候条件确定是否需要外接蒸汽;在不接蒸汽管时需将1″管帽盖上。
2.3外形及相关尺寸见下图和附表。


说明: 1、DN为接管通径,DN=80,100,125,150;
2、示例:煤气管道******压力为20000Pa,接管规格133×4.5,应选型号:PSQ13-30-125,其中“30”为水封高度3000mm。
3、换算:1mmH2O=9.80665Pa
-----------------------------------------------------------------------------------------------------------------------------------------
销售热线:021-6054 8553
13651636691 (微信同号)
销售传真:021-51010033-8036
工作 QQ:599221611
邮 箱:zhongye@zhongyesh.com
公司地址:上海市奉贤区柘林镇郊奉路1133号
搜索




